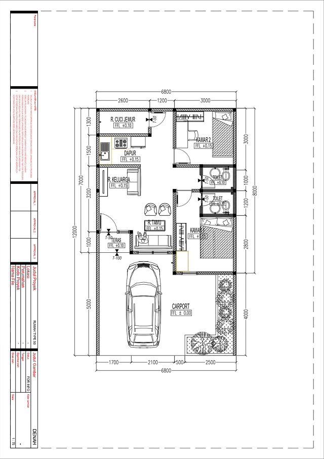
Rumah Type 50/82


Denah Lantai 1
Denah Rumah

Spesifikasi Bangunan

Pondasi : Footplat Cor Beton

Dinding : Bata hebel 10 cm

Atap : Genteng Beton

Lantai : Keramik 60x60

Kusen Pintu dan Jendela : Aluminium 3”

Sanitair : Closet Duduk + Spray

Sumber Air : PDAM

Listrik : 1300 watt

Septic Tank : Bio Septictank

Plafon : Gypsum Rangka Galvalum

Finishing Interior : Cat Indoor

Finishing Outdoor : Cat Outdoor

Graha Jalayudha 2025. All rights reserved.